网站首页
关于宏宸
签单保障
联系我们
宏宸简介
招聘信息
实体展厅
家装套餐
6系套餐
5系套餐
合作品牌
装修图库
设计师
最新优惠
宏宸口碑
最新开工
宏宸工长
装修分享
当前位置:
首页
>>
装修案例
>>
法式
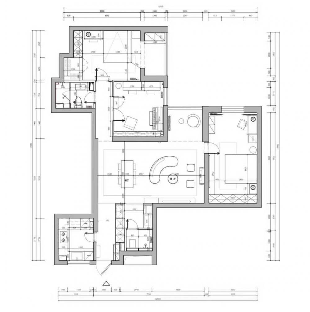
142㎡法式住宅优雅无需堆砌
类型: 法式
品牌: OTHER
规格:
单位: 件
重量:
环保标准:
简介:
一进门就是走廊式收纳,以实用为主,新加了3.5米的长柜子,依次是透气的壁挂中柜,用来收纳通勤的鞋子以及外出杂物。 厨房中间是烹饪区,右边是烤箱等电器柜,洗切炒一气呵成,厨房的大小也足够2个人同时操作 右边的电器区墙上也预留了电力轨道,方便小家电的使用。整个橱柜都是纯白的,显得空间敞亮。 往里走是宽敞的餐客厅,慢慢的法式风扑面而来。 餐区很大,两侧都安排半柜的情况下,放1米8的大桌也很宽敞。 整体的设计,按照业主的生活需求来,一侧安排管线机和饮水用具。 柜和旁边的镜子都是比餐桌更深的樱桃木色,有层次,实用性足够,与整体的风格一致。 客厅与餐区一体,通过视线划分空间,曲线围合的沙发和区域划分让每个功能区虽处在一个空间,却有独立的视觉感受。 客厅左边是原来的阳台,扩充客厅空间感,简单陈列了复古柜子,增强尽端的仪式感。 客厅正中央的墙面则留给了壁炉,是所有视线的中心,绝对对称,非常貌美。 客厅右边则是电视柜,因为是围合的曲线沙发,搭配单人位,看电视也是正视角,不会有斜视的不适感。 主卧功能也很完善,除了储物空间,还有独立休息区和观影功能。 餐客厅另一侧的走廊通往书房和次卧,书房改成双开门,更通透明亮。 书房里做了整墙书柜、阅读区和两人使用的书桌。女业主平时很喜欢在这里休息看书。 次卧目前业主没怎么用,保留了基础功能,为以后的儿童房使用做准备。整面衣柜设计,左边两扇还藏了一个小仓库,收纳容量充沛。 主卫地面是粉白色的小花砖,墙面贴了粉色方砖,半墙拼色,粉粉糯糯。 客卫改变了入口方向,并拓宽了一部分餐厅面积作为洗衣区和盥洗区。洗手台延续了主卫配色,在洗手池局部贴了一圈粉色挡水条。
142㎡法式住宅优雅无需堆砌
一共(
23
)张图
介绍
相关产品
网站首页
|
团装小区
|
装修案例
|
优秀工长
|
联系我们
|
招聘信息
BACK TOP