网站首页
关于宏宸
签单保障
联系我们
宏宸简介
招聘信息
实体展厅
家装套餐
6系套餐
5系套餐
合作品牌
装修图库
设计师
最新优惠
宏宸口碑
最新开工
宏宸工长
装修分享
当前位置:
首页
>>
装修案例
>>
法式
真没想到人生的辉煌,是装修了一套梦中情房
类型: 法式
品牌: OTHER
规格:
单位: 件
重量:
环保标准:
简介:
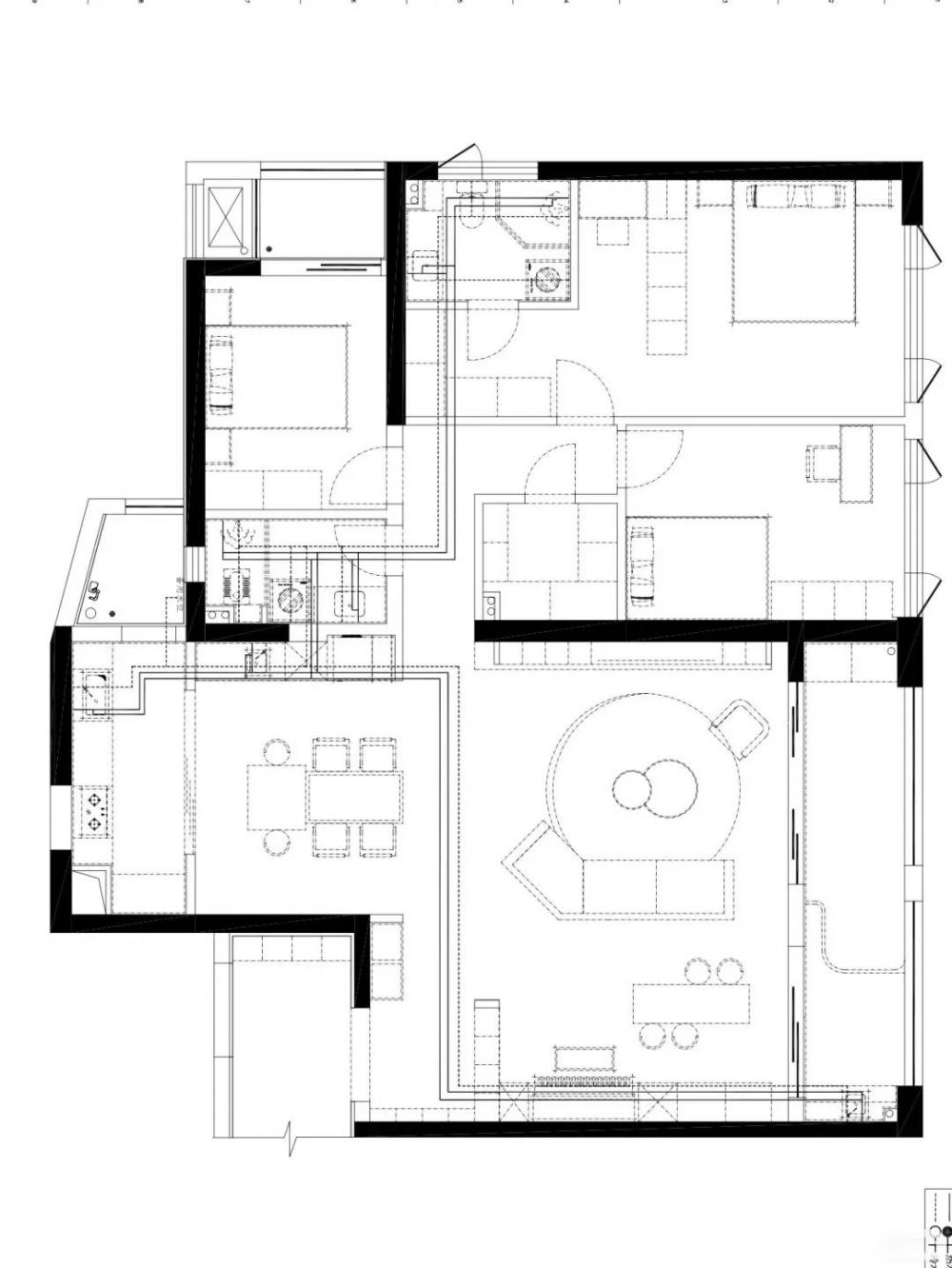
邻居们还在组团参观,进门就夸装修温馨又高级,全小区都在抄作业! 我家各区域装修干货都整理好啦,你一定用得上!有户型图可以参考 客厅: 轻法式装修风格高级又耐看!全屋乳胶漆:奶油白搭配橄榄绿,清新又有格调。 无主灯设计,3000k暖光超治愈。客厅是米灰色亮光地砖,尺寸60*120,显大又耐脏! 玄关: 交错的半圆拱门,弧形角度是65R,艺术感满满。木工做完框架再贴石膏板,记住收口圆润才美观,不然后期容易开裂!玄关宽度1.5米 鞋柜下的悬空鱼缸,尺寸是高35,长1.2 厨房/餐厅: 客餐厨一体化,通透开阔。中西厨玻璃滑门隔开空间更灵活。整面墙的餐边柜,米灰色肤感膜材质颗粒板。 电器嵌入柜体更简洁大气,餐厅摆壁炉,线条装饰背景墙氛围感拿捏。 卧室: 20平卧室打造法式小套房,有独立洗手间和衣帽间,分区合理。米白色肤感膜衣柜和床头背景墙,干净敞亮。床头绿色拱形造型,超加分。 阳台: 开放式阳台改造成高空小花园,铺防水耐磨spc地板,加高玻璃栏杆,木质吊顶,是晒太阳、喝茶发呆的好地方。天气好围炉煮茶,幸福感爆棚。 洗手间: 灰色系洗手间,高级耐脏,融入洗衣房功能。干湿分离,功能齐全。
真没想到人生的辉煌,是装修了一套梦中情房
一共(
14
)张图
介绍
相关产品
网站首页
|
团装小区
|
装修案例
|
优秀工长
|
联系我们
|
招聘信息
BACK TOP